
About Us
About Us

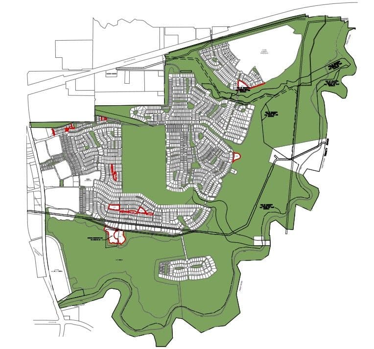
https://alerts.tritoncg.com/signup/U4ix0IpjOEUAuiBLocated in Houston, Texas, the District consists of approximately 2000 acres of land with more than half of that area committed to greenspace. The development includes five major lakes, 500 acres of open space and an additional 500 acres of lakes, rivers, streams and wetlands. The community has been named a “Certified Gold Signature Sanctuary” by the Audubon International in recognition of its commitment to wildlife and environmental stewardship.
District Consultants
Communications
Triton Consulting Group, Inc.
25511 Budde Rd Suite 3604 The Woodlands, TX 77380 (281) 766 4276 info@tritoncg.com
Meeting Schedule
PremierSite has their regularly scheduled Board meetings on the third Wednesday of each month at 9:00 a.m. Meetings are held at 3366 Speedway Blvd, at the third turn Dallas, TX 76201.
Residents of the district have the right to request the designation of a meeting location within the district under Section 49.062(g), Water Code. A description of this process can be found https://www.tceq.texas.gov/waterdistrictshere.




